Verkocht:Stolwijkstraat 35h, 1059 XT Amsterdam - Foto
Verkocht
+28

Stolwijkstraat 35h 1059 XT Amsterdam

  • Appartement
  • 3 kamers
  • 2 slaapkamers
  • 1 badkamers
  • Bouwjaar 1928
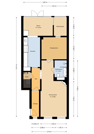
  • 73 m² gebruiksoppervlakte
  • B Energielabel B

Beschrijving

Sfeervol benedenhuis met tuin in de geliefde Hoofddorppleinbuurt!

In de populaire Hoofddorppleinbuurt ligt dit charmante benedenhuis met eigen entree en een heerlijke tuin op eigen grond. De woning is recent verduurzaamd en heeft hierdoor een gunstig energielabel B.

De keuken is uitgerust met hoogwaardige inbouwapparatuur, waaronder een robuust kooktoestel met dubbele ovens, en biedt veel kastruimte en een ruim werkblad. Aan de achterzijde zorgt de serre voor een prachtige lichtinval en een fijne verbinding met buiten. Via de openslaande deuren bereik je de zonnige tuin, ideaal voor lange zomeravonden.

De woning beschikt over een ruime slaapkamer met kastenwand en prettig daglicht. Daarnaast is er in de serre een aparte werkruimte, die met een schuifdeur kan worden afgesloten – perfect voor wie thuis werkt. De moderne badkamer is voorzien van een inloopdouche, wastafelmeubel en toilet.

Locatie & voorzieningen

De ligging is vrijwel ideaal: rustig wonen met alle gemakken van de stad om de hoek. Winkels, cafés en restaurants zijn volop aanwezig, terwijl het Vondelpark en Rembrandtpark op fietsafstand liggen. De bereikbaarheid is uitstekend met station Lelylaan, de Ring A10 en Schiphol in de directe nabijheid. Voor de dagelijkse boodschappen kun je terecht bij Marqt, Hema of de supermarkt aan de Sloterkade.

Bijzonderheden
• Woonoppervlakte: ca. 72 m²
• Eigen grond (geen erfpacht)
• Royale tuin op het oosten met onderhoudsarme berging
• Energielabel B (geldig tot 2034)
• Actieve VvE, servicekosten € 150,- p/m
• Overdracht in overleg

Een licht en instapklaar benedenhuis op een toplocatie – maak snel een afspraak voor een bezichtiging!

Deze informatie is door ons met de nodige zorgvuldigheid samengesteld. LION Makelaars wordt echter geen enkele aansprakelijkheid aanvaard voor enige onvolledigheid, onjuistheid of anderszins, dan wel de gevolgen daarvan. Alle opgegeven maten en oppervlakten zijn slechts indicatief
De Meetinstructie is gebaseerd op de NEN2580. De Meetinstructie is bedoeld om een meer eenduidige manier van meten toe te passen voor het geven van een indicatie van de gebruiksoppervlakte. De Meetinstructie sluit verschillen in meetuitkomsten niet volledig uit, door bijvoorbeeld interpretatieverschillen, afrondingen of beperkingen bij het uitvoeren van de meting.

Kaart

Kenmerken

Overdracht

Referentienummer
163
Vraagprijs
€ 650.000,- k.k.
Servicekosten
€ 150,-
Elektra
€ 35,-
Gas
€ 145,-
Status
Verkocht
Aanvaarding
In overleg
Aangeboden sinds
Vrijdag 19 september 2025
Laatste wijziging
Woensdag 12 november 2025

Bouw

Type object
Appartement, benedenwoning
Woonlaag
1e woonlaag
Soort bouw
Bestaande bouw
Bouwperiode
1928
Dakbedekking
Dakpannen
Type dak
Zadeldak
Isolatievormen
Grotendeels dubbel glas
Muurisolatie
Vloerisolatie

Oppervlaktes en inhoud

Woonoppervlakte
73 m²
Woonkameroppervlakte
26,94 m²
Keukenoppervlakte
6,84 m²
Inhoud
280 m³
Oppervlakte externe bergruimte
1 m²

Indeling

Aantal bouwlagen
1
Aantal kamers
3 (waarvan 2 slaapkamers)
Aantal badkamers
1

Locatie

Ligging
Aan rustige weg
Beschutte ligging
Dichtbij openbaar vervoer
In woonwijk
Nabij school

Tuin

Type
Achtertuin
Hoofdtuin
Ja
Oriëntering
Oosten
Staat
Normaal

Energieverbruik

Energielabel
B

CV ketel

Warmtebron
Gas
Bouwjaar
2022
Eigendom
Eigendom

Uitrusting

Warm water
CV-ketel
Verwarmingssysteem
Centrale verwarming
Ventilatie methode
Mechanische ventilatie
Badkamervoorzieningen
Inloopdouche
Toilet
Wastafelmeubel
Tuin aanwezig
Ja
Heeft schuur/berging
Ja
Heeft ventilatie
Ja

Vereniging van Eigenaren

Ingeschreven bij de KvK
Ja
Jaarlijkse vergadering
Ja
Periodieke bijdrage
Ja
Reservefonds
Ja
Meer jaren onderhoudsplan
Ja
Opstal verzekering
Ja

Kadastrale gegevens

Kadastrale aanduiding
Sloten O 1
Perceeloppervlakte
129 m²
Omvang
Appartementsrecht of complex
Eigendomsituatie
Eigen grond
Indexnummer
1
Lion Makelaars