Onder bod:Sluisstraat 64-3, 1075 TH Amsterdam - Foto
Onder bod
+35

Sluisstraat 64-3 1075 TH Amsterdam € 1.160.000,- k.k.

  • Appartement
  • 4 kamers
  • 3 slaapkamers
  • 1 badkamers
  • Bouwjaar 1913
  • 131 m² gebruiksoppervlakte
  • Gestoffeerd
  • A Energielabel A

Beschrijving

Hierbij bieden wij deze zeer ruime en lichte duplex appartement met riant dakterras en uitzicht over de schinkel te koop aan. De woning is recentelijk geschilderd en is klaar om zonder aanpassingen bewoond te gaan worden door de volgende eigenaar.

De Sluisstraat is een rustige straat in de Schinkelbuurt (Oud West) en op een paar minuten loopafstand van het Vondelpark en de gezellige Zijlstraat en Amstelveenseweg waar u winkels voor de dagelijkse boodschappen en diverse restaurants kunt vinden.

Indeling

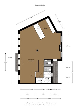
Vanaf de straat via het gemeenschappelijke trappenhuis naar de derde verdieping, toegang tot het appartement middels de ruime hal met garderobekast en gastentoilet. De royale woonkamer met open keuken is zeer licht door de vele raampartijen die op het zuiden gericht zijn. Verder zijn er openslaande deuren naar het frans balkon wat een verlenging van de woonkamer geeft. Aan de noordzijde bevindt zich nog een balkon.

Via de vaste binnentrap naar de vierde verdieping, waar zich de drie slaapkamers en badkamer bevinden. Twee van de slaapkamers zijn voorzien van plafond ventilatoren.

De volgende trap leidt naar het dakhuisje met kitchenette en riante dakterras waar het heerlijk toeven is.

De Schinkelbuurt is een sfeervolle wijk in Amsterdam-Zuid, globaal begrensd door de rivier de Schinkel en de Amstelveenseweg. De meeste woningen dateren uit het begin van de 20e eeuw, met straatnamen die verwijzen naar de scheepvaart, zoals Sluisstraat, Zeilstraat, Vaartstraat en Baarsstraat. De nabijheid van het Vondelpark en het Rembrandtpark zorgt voor een groene omgeving.

Details:

- Ruim duplex appartement van 131 m2;
- 3 slaapkamers en heerlijk dakterras;
- Gerenoveerd in 2014 en recentelijk geschilderd;
- Energielabel A;
- Eigen grond;
- VVE wordt professioneel beheert door VVE’tje;
- Maandelijkse bijdrage VVE 118 Euro;
- Aanvaarding in overleg en kan snel;

Deze informatie is door ons met de nodige zorgvuldigheid samengesteld. LION Makelaars wordt echter geen enkele aansprakelijkheid aanvaard voor enige onvolledigheid, onjuistheid of anderszins, dan wel de gevolgen daarvan. Alle opgegeven maten en oppervlakten zijn slechts indicatief
De Meetinstructie is gebaseerd op de NEN2580. De Meetinstructie is bedoeld om een meer eenduidige manier van meten toe te passen voor het geven van een indicatie van de gebruiksoppervlakte. De Meetinstructie sluit verschillen in meetuitkomsten niet volledig uit, door bijvoorbeeld interpretatieverschillen, afrondingen of beperkingen bij het uitvoeren van de meting.

Kaart

Kenmerken

Overdracht

Referentienummer
164
Vraagprijs
€ 1.160.000,- k.k.
Servicekosten
€ 118,-
Inrichting
Ja
Inrichting
Gestoffeerd
Status
Onder bod
Aanvaarding
In overleg
Aangeboden sinds
Donderdag 28 augustus 2025
Laatste wijziging
Vrijdag 5 september 2025

Bouw

Type object
Appartement, bovenwoning, dubbelbovenhuis
Woonlaag
4e woonlaag
Soort bouw
Bestaande bouw
Bouwperiode
1913
Dakbedekking
Bitumen
Type dak
Platdak
Isolatievormen
Dakisolatie
Grotendeels dubbel glas
Muurisolatie

Oppervlaktes en inhoud

Woonoppervlakte
131 m²
Woonkameroppervlakte
40,5 m²
Keukenoppervlakte
9,61 m²
Inhoud
335 m³
Oppervlakte gebouwgebonden buitenruimte
41 m²
Balkonoppervlakte
3,79 m²

Indeling

Aantal bouwlagen
3
Aantal kamers
4 (waarvan 3 slaapkamers)
Aantal badkamers
1 (en 1 apart toilet)

Locatie

Ligging
Aan rustige weg
Beschutte ligging
In centrum
In woonwijk

Energieverbruik

Energielabel
A

CV ketel

CV ketel
HR107
Warmtebron
Gas
Bouwjaar
2013
Combiketel
Ja
Eigendom
Eigendom

Uitrusting

Warm water
CV-ketel
Verwarmingssysteem
Centrale verwarming
Vloerverwarming (gedeeltelijk)
Ventilatie methode
Mechanische ventilatie
Badkamervoorzieningen
Inloopdouche
Ligbad
Toilet
Vloerverwarming
Wastafel
Heeft een balkon
Ja
Heeft een frans balkon
Ja
Beschikt over een internetverbinding
Ja
Heeft een dakraam
Ja
Heeft ventilatie
Ja

Vereniging van Eigenaren

Ingeschreven bij de KvK
Ja
Jaarlijkse vergadering
Ja
Periodieke bijdrage
Ja
Reservefonds
Ja
Meer jaren onderhoudsplan
Ja
Opstal verzekering
Ja

Kadastrale gegevens

Kadastrale aanduiding
Amsterdam U A5
Omvang
Appartementsrecht of complex
Eigendomsituatie
Eigen grond

Brochure(s) en overige bijlagen

Sluisstraat 64-3, 1075 TH AMSTERDAM (1) Download
Lion Makelaars