Nieuw in verhuur:Fred. Roeskestraat 92A12, 1076 ED Amsterdam - Foto
Nieuw in verhuur
+36

Fred. Roeskestraat 92A12 1076 ED Amsterdam € 3.450,- /mnd

  • Appartement
  • 3 kamers
  • 2 slaapkamers
  • 1 badkamer
  • Bouwjaar 2018
  • 115 m² gebruiksoppervlakte
  • Gemeubileerd
  • A Energielabel A

Beschrijving

In het in 2018 opgeleverde wooncomplex 'De Fred', dat luxe en warmte uitstraalt bieden wij dit GEHEEL GEMEUBILEERDE 3 kamer appartement van 115 vierkante meter te huur aan. De woning bevindt zich op de 5e verdieping van het gebouw, en is uiteraard met de lift bereikbaar. Het appartement verkeert in absolute nieuwstaat, is zeer hoogwaardig afgewerkt en gemeubileerd met design meubelen. Huurder heeft de mogelijkheid om de parkeerplek in de parkeerkelder er separaat bij te huren.

Ligging

De Fred is een modern en fraai vormgegeven appartementen complex bestaande uit drie gebouwen waarvan er één gebouwd is aan de oever van het Zuider Amstelkanaal, met uitzicht op de Stadionkade. Voor de bewoners is er een fraai aangelegde binnentuin met tal van gezellige zitjes, pergola's en bloeiende planten.
Het Olympisch Stadion, winkels voor de dagelijkse boodschappen, tal van restaurants, de Zuidas en het Amsterdamse bos zijn allemaal op loopafstand gelegen. Het openbaar vervoer naar het centrum van Amsterdam of juist de stad uit zijn ook lopend te bereiken. Kortom De Fred biedt u rustige woonomgeving op hoog niveau met alle voorzieningen dichtbij.
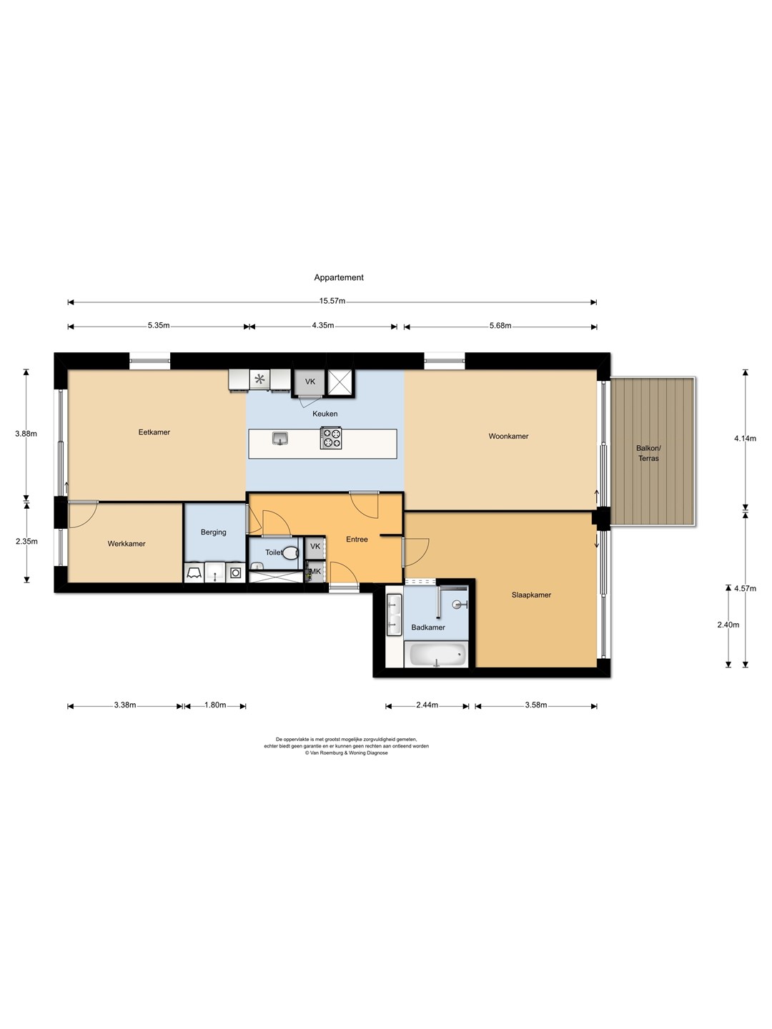
Indeling
Vanaf de straat door de onderdoorgang, via de gemeenschappelijke binnentuin gebouw C. Een met rode marmer bekleedde hal met lift. Entree, hal met garderobe, waskamer/berging en toilet met fonteintje. Entree tot de woonkamer via de glazen/stalen deur. De woonkamer en de zitkamer worden gescheiden door het oversized kookeiland van marmer look werkblad. In de noordzijde van de woonkamer staat de ruime eettafel met aansluitend het kantoor of tweede slaapkamer die wordt afgescheiden door een zwart glazen/stalen pui. Vanuit de eethoek heeft u een prachtig uitzicht over de doorgaande vaarroute van het Zuider Amstelkanaal.
Het zonneterras is achter de royale glazen schuifpui van de woonkamer gelegen, afgezet met gehard glas.
De centrale hal verschaft tevens toegang tot de stoere badkamer en zeer ruime 'master bedroom' met een op maat gemaakte kastenwand van ruim vijf meter lengte. Het zeer luxe swiss sense boxspring is nagenoeg nieuw.

Specificaties:
- 3 kamer appartement van 115 m2;
- recent volledig geschilderd en een nieuwe vloer gelegd;
- Zeer luxueus afgewerkt met onder andere een visgraat vloer en inbouwkasten;
- Zonneterras gericht op het zuiden;
- Nabij het Amsterdamse bos met tal van recreatie mogelijkheden;
- Openbaar vervoer en de Zuidas op loopafstand;
- Zeer solide en energiezuinig gebouwd;
- Energielabel A
- Huurder heeft de mogelijkheid tot het bijhuren van de parkeerplaats in de parkeerkelder voor 225 euro per maand;
- Beschikbaar direct.

Deze informatie is door ons met de nodige zorgvuldigheid samengesteld. LION Makelaars wordt echter geen enkele aansprakelijkheid aanvaard voor enige onvolledigheid, onjuistheid of anderszins, dan wel de gevolgen daarvan. Alle opgegeven maten en oppervlakten zijn slechts indicatief
De Meetinstructie is gebaseerd op de NEN2580. De Meetinstructie is bedoeld om een meer eenduidige manier van meten toe te passen voor het geven van een indicatie van de gebruiksoppervlakte. De Meetinstructie sluit verschillen in meetuitkomsten niet volledig uit, door bijvoorbeeld interpretatieverschillen, afrondingen of beperkingen bij het uitvoeren van de meting

In the residential complex 'De Fred', completed in 2018, which breathes luxury and warmth, we offer this FULLY FURNISHED 3 room apartment of 115 square meters for rent. The property is located on the 5th floor of the building and can of course be reached by elevator. The apartment is in an absolutely new condition, has been finished to a very high standard and furnished with design furniture. The tenant has the option to rent the parking space in the parking basement separately.

Location

De Fred is a modern and beautifully designed apartment complex consisting of three buildings, one of which was built on the banks of the Zuider Amstel Canal, overlooking the Stadionkade. For residents there is a beautifully landscaped courtyard with numerous cozy seating areas, pergolas and flowering plants.
The Olympic Stadium, shops for groceries, numerous restaurants, the Zuidas and the Amsterdamse Bos are all within walking distance. Public transport to the center of Amsterdam or out of the city can also be reached on foot. In short, De Fred offers you a quiet living environment at a high level with all amenities nearby.
Layout
From the street through the underpass, through the communal courtyard building C. A red marble clad hall with elevator. Entrance hall with cloakroom, laundry room/storage room and toilet with hand basin. Entrance to the living room through the glass/steel door. The living room and the sitting room are separated by the oversized kitchen island of marble look worktop. In the north side of the living room is the spacious dining table followed by the office or second bedroom, which is separated by a black glass/steel front. From the dining area you have a beautiful view over the main sailing route of the Zuider Amstelkanaal.
The sun terrace is located behind the spacious glass sliding doors of the living room, trimmed with tempered glass.
The central hall also provides access to the sturdy bathroom and very spacious 'master bedroom' with a custom-made cupboard wall of more than five meters in length. The very luxurious swiss sense box spring is almost new.

Details:

- 3 room apartment of 115 m2;
- Very luxuriously finished with a herringbone oak floor;
- Sun terrace oriented to the south;
- Near the Amsterdamse Bos with numerous recreational opportunities;
- Public transport and the office district Zuidas within walking distance;
- Very solid and energy efficient built;
- Energy label A
- The tenant has the option to rent the parking space in the parking basement for 200 euros per month;
- Available from 01-01-2023.

This information was drafted with the utmost care. However, LION makelaars is not liable for any unintended omission or inaccuracy, etcetera nor any consequences related thereto. All measurements and sizes are indicative only.
The Measurement Code is based on NEN2580 standards. The Measurement Code is intended to ensure a more universal survey method for indicating total net internal area (usable floor area). The Measurement Code cannot fully preclude discrepancies between individual surveys, due to e.g. differences regarding interpretation, rounding and restrictions to conducting measurement surveys.

Kaart

Kenmerken

Overdracht

Referentienummer
221
Huurprijs
€ 3.450,- per maand (incl. servicekosten, gemeubileerd, gestoffeerd, geïndexeerd)
Borg
€ 6.900,-
Inrichting
Ja
Inrichting
Gemeubileerd
Status
Nieuw in verhuur
Aanvaarding
In overleg
Aangeboden sinds
Zaterdag 25 april 2026

Bouw

Type object
Appartement, portiekflat
Woonlaag
6e woonlaag
Soort bouw
Bestaande bouw
Bouwperiode
2018
Dakbedekking
Bitumen
Type dak
Platdak
Isolatievormen
Volledig geïsoleerd

Oppervlaktes en inhoud

Woonoppervlakte
115 m²
Woonkameroppervlakte
43,46 m²
Keukenoppervlakte
16,88 m²
Inhoud
380 m³
Oppervlakte gebouwgebonden buitenruimte
10 m²

Indeling

Aantal bouwlagen
1
Aantal kamers
3 (waarvan 2 slaapkamers)
Aantal badkamers
1 (en 1 apart toilet)

Locatie

Ligging
Aan rustige weg
Aan vaarwater
Vrij uitzicht

Energieverbruik

Energielabel
A

Uitrusting

Aantal parkeerplaatsen
1
Aantal overdekte parkeerplaatsen
1
Warm water
Stadsverwarming
Verwarmingssysteem
Stadsverwarming
Ventilatie methode
Mechanische ventilatie
Badkamervoorzieningen
Douche
Dubbele wastafel
Ligbad
Toilet
Heeft een lift
Ja
Tuin aanwezig
Ja
Heeft een schuifpui
Ja
Heeft zonwering
Ja
Heeft ventilatie
Ja
Lion Makelaars