Verhuurd:Sint Philipsland 113, 1181 JJ Amstelveen - Foto
Verhuurd
+20

Sint Philipsland 113 1181 JJ Amstelveen

  • Appartement
  • 3 kamers
  • 2 slaapkamers
  • 1 badkamers
  • Bouwjaar 1965
  • 80 m² gebruiksoppervlakte
  • Gestoffeerd
  • A Energielabel A

Beschrijving

Op zoek naar een licht appartement met twee slaapkamers en een ruim westgericht balkon in een rustige maar centrale wijk van Amstelveen? De woning is recentelijk verduurzaamd en heeft een zeer gunstig energielabel A gekregen. De woning wordt gestoffeerd verhuurd waarbij de aanwezige meubels in bruikleen aan huurders worden aangeboden.

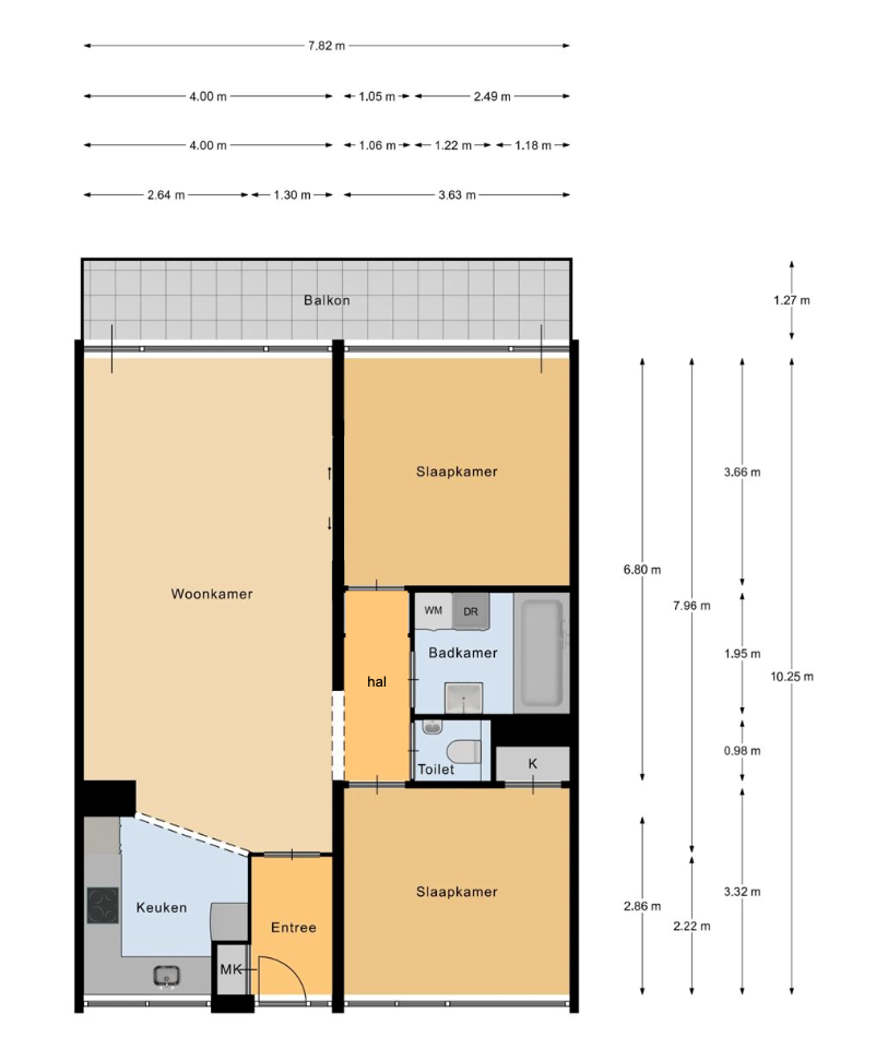
INDELING
Via de verzorgde, gemeenschappelijke entree met intercom, brievenbussen, trap en lift bereik je de zevende verdieping. De ruime hal geeft toegang tot alle vertrekken. De lichte woonkamer biedt directe toegang tot het brede westgerichte balkon dat over de volledige breedte van het appartement loopt – een heerlijke plek om tot in de avond van de zon te genieten. De open keuken is volledig uitgerust. Er zijn twee slaapkamers: de slaapkamer aan de achterzijde heeft toegang tot het balkon, de tweede slaapkamer ligt aan de voorzijde. De badkamer is voorzien van een inloopdouche, wasmachine en droger. Naast de badkamer bevindt zich een apart toilet.

LOCATIE
Gelegen in de centraal gelegen en groene wijk Elsrijk, bevindt Sint Philipsland 113 zich op loopafstand van het Stadshart Amstelveen met een uitgebreid aanbod aan winkels, restaurants, cafés, een bioscoop en het Cobra Museum. In de directe omgeving vind je supermarkten, scholen, sportfaciliteiten en het Amsterdamse Bos.

De verbindingen met het openbaar vervoer zijn uitstekend, met snelle tram- en busverbindingen naar Amsterdam, Schiphol en omliggende gebieden. Met de auto zijn de A9, A2, A4 en A10 snel bereikbaar.

BIJZONDERHEDEN
- Woonoppervlakte: ca. 80 m²;
- Energielabel A;
- Twee slaapkamers;
- Zeer royaal balkon van 10 m2;
- Gestoffeerd;
- Per direct beschikbaar;
- Voorschot stookkosten van toepassing;
- Lift aanwezig in het gebouw.

Deze informatie is door ons met de nodige zorgvuldigheid samengesteld. LION Makelaars wordt echter geen enkele aansprakelijkheid aanvaard voor enige onvolledigheid, onjuistheid of anderszins, dan wel de gevolgen daarvan. Alle opgegeven maten en oppervlakten zijn slechts indicatief. De Meetinstructie is gebaseerd op de NEN2580. De Meetinstructie is bedoeld om een meer eenduidige manier van meten toe te passen voor het geven van een indicatie van de gebruiksoppervlakte. De Meetinstructie sluit verschillen in meetuitkomsten niet volledig uit, door bijvoorbeeld interpretatieverschillen, afrondingen of beperkingen bij het uitvoeren van de meting

Kaart

Kenmerken

Overdracht

Referentienummer
166
Huurprijs
€ 2.500,- per maand (incl. servicekosten, gestoffeerd)
Borg
€ 5.000,-
Verwarming
€ 100,- per maand
Inrichting
Ja
Inrichting
Gestoffeerd
Status
Verhuurd
Aanvaarding
Direct
Aangeboden sinds
Donderdag 25 september 2025
Laatste wijziging
Maandag 13 oktober 2025

Bouw

Type object
Appartement, galerijflat
Woonlaag
8e woonlaag
Soort bouw
Bestaande bouw
Bouwperiode
1965
Isolatievormen
Grotendeels dubbel glas
HR-glas

Oppervlaktes en inhoud

Woonoppervlakte
80 m²
Inhoud
210 m³

Indeling

Aantal bouwlagen
1
Aantal kamers
3 (waarvan 2 slaapkamers)
Aantal badkamers
1 (en 1 apart toilet)

Locatie

Ligging
Aan rustige weg

Energieverbruik

Energielabel
A

Uitrusting

Warm water
Elektrische boiler
Verwarmingssysteem
Blokverwarming
Heeft een balkon
Ja
Heeft een lift
Ja

Kadastrale gegevens

Kadastrale aanduiding

Media

Plattegronden

Lion Makelaars